




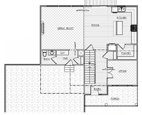
Trust Builders’ Logan Two-Story Plan with 2129 SQ FT Above Ground provides a great layout for so many homeowners.
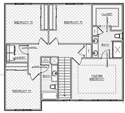
Included is an office on the main level, four bedrooms on the second level, and 2.5 bathrooms.
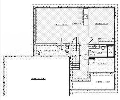
The potential with this plan for additional lower level basement finish allows for plenty of space for flexible living with a 5th bedroom, living space, bath and optional wet bar.
Reach out to Trust Builders to discuss building this floor plan on your desired lot.